Mobilní vzduchový kompresor s dieselovým pohonem

Mobilní vzduchový kompresor s dieselovým pohonem

Atlas Copco vám nabízí profesionální mobilní vzduchový kompresor s dieselovým pohonem. Tato jednotka se skládá ze dvou vysoce účinných komponent kompresoru, dieselového motoru, chlazení, separace vzduchu/oleje a řídicího systému, s vysokou spolehlivostí systému a širokým rozsahem použití jediného kompresoru. Jsme profesionální výrobce a dodavatel vzduchových kompresorů v Číně. Vítejte na konzultaci a nákupu.

Odeslat dotaz

Popis výrobku

Reference produktu

Standardní rozsah dodávky



Atlas Copco X1300, Y1300 a XRS 1500-20 jsou odhlučněné dvoustupňové šroubové kompresory se vstřikováním oleje, které pohání kapalinou chlazený šestiválcový dieselový motor Cummins.

Jednotka se skládá ze dvou vysoce účinných kompresorových prvků, vznětového motoru, chlazení, separace vzduchu/oleje a řídicích systémů – to vše je uzavřeno ve zvukově tlumeném ocelovém krytu.

Zvláštní pozornost byla věnována celkové kvalitě produktu, uživatelské přívětivosti, snadné údržbě a ekonomickému provozu, aby byly zajištěny nejlepší náklady na vlastnictví ve své třídě.




Dostupné modely

X1300  

 Dvoustupňový – 1250 cfm@435 psi – Dieselový motor Cummins

Y1300

Dvoustupňový – 1165 cfm@508 psi – Dieselový motor Cummins

XRS

1500-20 dvoustupňový – 1434 cfm@290 psi – Dieselový motor Cummins


Vlastnosti

• DrillAir™

• Oiltronix™ V2

• Další 3% úspora paliva

• Nová koncepce nádoby na odlučování oleje

• XPR

• Dynamické zvýšení průtoku

Výhody

• 30% zvýšení rychlosti vrtání a pokrytí široké škály aplikací s jediným kompresorem

• Vysoká spolehlivost systému, zamezení tvorby vody v olejovém systému kompresoru a prodloužená životnost prvku

• Žádný ruční regulační ventil nebo potrubí pro regulaci tlaku eliminují související problémy se zamrzáním

• Ušetřete 1 hodinu na změnu OSE

• Nabídka rozšířeného rozsahu pro pokrytí více aplikací

• Nabídněte o 10 % větší průtok během proplachování a doplňování vřetene



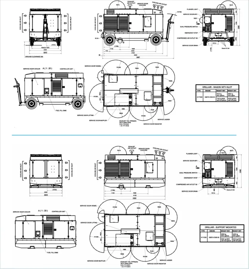
Technické parametry


Specifikace a rozměry


Základní údaje



Kompresorový prvek

Kvalitu kompresoru lze měřit spolehlivostí, účinností a životností použitého kompresorového prvku. Díky desetiletím odborných znalostí v oblasti návrhu prvků kompresoru je výsledkem výroba nejúčinnějších a nejspolehlivějších kompresorů na trhu.

Separátor vzduch/olej

Oddělení vzduchu a oleje je dosaženo pomocí odstředivého odlučovače oleje kombinovaného s filtrační vložkou.

Separátor je navržen pro vyšší maximální pracovní tlak a je vybaven utěsněným vysokotlakým pojistným ventilem, ventilem minimálního tlaku, automatickým odkalovacím ventilem a regulátorem tlaku.

Chladicí systém

Motor je vybaven kapalinovým chladičem a mezichladičem a kompresor je opatřen chladičem oleje. Chladicí systém je vhodně navržen pro nepřetržitý provoz v okolních podmínkách do 50°C, se zavřenými dveřmi kabiny.

Regulační systém kompresoru

Regulační systém mobilního vzduchového kompresoru s dieselovým pohonem se skládá ze vzduchových filtrů, vzduchového zásobníku/odlučovače oleje, kompresorového prvku, sestavy vstupního ventilu se vstupním ventilem a odkalovacím ventilem; vše řízeno elektronickým regulačním systémem.

Variabilní regulační systém poskytuje plnou kontrolu nad tlakem a průtokem kompresoru. Řídí tlak v nádobě a výstupní průtok měřením tlaku vzduchu a teploty vzduchu v několika bodech a řídí sací vzduchový ventil, otáčky motoru a vypouštěcí ventil odpovídající naměřeným hodnotám.

Ekonomická spotřeba paliva je zajištěna plně automatickým plynulým regulátorem otáček, který přizpůsobuje otáčky motoru poptávce vzduchu.

Výpusti

Stlačený vzduch je k dispozici od 1 x G2.


Motor

Dieselový motor Cummins

Dieselově poháněný mobilní vzduchový kompresor je poháněn kapalinou chlazeným šestiválcovým dieselovým motorem Cummins QSZ13-C550-30. Výkon motoru se přenáší na kompresorový prvek prostřednictvím spojky pro velké zatížení.

Elektrický systém

X1300, Y1300 a XRS 1500-20 jsou vybaveny 24voltovým záporným uzemněným elektrickým systémem.

Přístrojové vybavení – XC4003

Ovládací panel XC4003 je umístěn na přední straně krytu kompresoru.

Intuitivní ovladač Atlas Copco XC4003 se snadno ovládá se všemi funkcemi pohodlně na dosah ruky. Ovladač také spravuje operační systém ECU motoru a řadu bezpečnostních varování a vypínání u různých parametrů (uvedených níže).

Funkce ovladače XC4003:

• Hlavní obrazovka

- Tlak v nádobě

- Hladina paliva

- Provozní hodiny

- RPM

- Průtok vzduchu CFM

• Obecná nastavení

- Stacionární regenerace DPF

- Diagnostika motoru

- Auto Start/Load/Stop

- Jazyky

- Měrné jednotky

• Měření

- Spotřeba paliva

- Teplota chladicí kapaliny motoru

- Teplota prvku kompresoru

- Tlak v nádobě

- Zatížení motoru

- Tlak motorového oleje

- Zatížení DPF sazemi

- Teplota paliva

- Napětí baterie

- Regulační tlak

- Hodiny nabití/vyložení

- Úspěšné/neúspěšné starty

- Servisní časovače (2)

• Provozní kontroly

- Přednastavený průtok nebo provozní tlak

• Servis

- Trendy dat

- Záloha projektu

• Alarm

- Aktivní alarmy

- Historie protokolu událostí

- Historie protokolu alarmů



Bezpečnostní zařízení

Kompresor je standardně vybaven bezpečnostními zařízeními pro kompresor a motor. Jednotka bude zcela vypnuta, pokud:

- Příliš vysoká teplota motorového oleje

- Příliš nízký pokles tlaku motorového oleje

- Výstupní teplota stlačeného vzduchu je mimo stanovený rozsah.

- Nízká hladina paliva

Startér je také chráněn proti přetížení při nadměrném provozu nebo při běžícím motoru.


Karosérie

Mobilní vzduchový kompresor s dieselovým pohonem je standardně dodáván s pozinkovaným ocelovým krytem s práškovým lakem, který poskytuje vynikající ochranu proti korozi.

Široké dveře poskytují kompletní servisní přístup ke všem komponentům.


Výrobní a ekologické normy

X1300, Y1300 a XRS 1500-20 jsou vyráběny v souladu s přísnými předpisy ISO 9001 a plně implementovaným ekologickým

Systém managementu splňující požadavky ISO 14001. Pozornost byla věnována zajištění minimálního negativního dopadu na životní prostředí.


Dodaná dokumentace

Jednotka je dodávána s následujícími dokumenty a certifikáty:

- Seznam náhradních dílů pro kompresor.

- Návod k obsluze pro kompresor i motor.

- Certifikát o zkoušce stroje.

- Certifikát plavidla.

Záruční krytí

• Informace o záruce naleznete v prezentaci produktu.

• K dispozici jsou programy prodloužené záruky; pro více informací kontaktujte svého místního obchodního zástupce.

* Poznámka: Vzhledem k neustálému zlepšování produktů se technické specifikace mohou změnit bez předchozího upozornění.





Hot Tags: Mobilní vzduchový kompresor s dieselovým pohonem, Čína, výrobce, dodavatel, továrna

Související kategorie

Odeslat dotaz

Neváhejte a napište svůj dotaz do formuláře níže. Odpovíme vám do 24 hodin.
X
Používáme cookies, abychom vám nabídli lepší zážitek z prohlížení, analyzovali návštěvnost webu a přizpůsobili obsah. Používáním tohoto webu souhlasíte s naším používáním souborů cookie. Zásady ochrany osobních údajů
Odmítnout Přijmout